就在今晚!龙港这两个区域停水~~
龙港水务

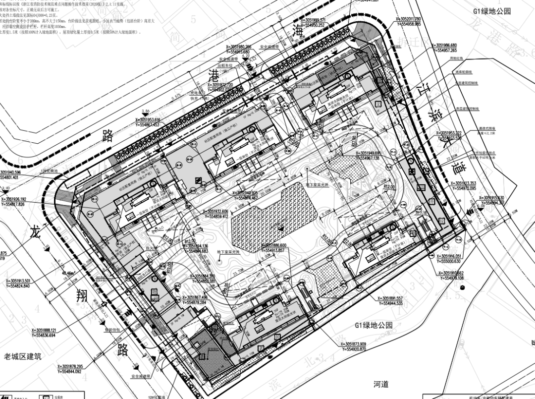
龙港市城市建设发展有限公司建设的龙港市滨江核心区综合开发项目YJ-03-01地块建设项目,土地坐落在龙港市西南侧为龙翔路,西北侧为海港路,东北侧为江滨大道,现进行建设工程规划许可批前公示,该项目作如下公示:(附总平面图,如图所示)
(1)土地性质:住宅用地;
(2)用地面积:21278.95㎡;
(3)建筑面积:74622.98㎡(含地下面积16807.15㎡,另有架空面积1094.2㎡);
(4)建筑层数:1#-5#幢为26层、6#幢为2层局部1层、7#幢、门卫为1层;
(5)其他经济技术指标见总平面图;
凡是与本建设项目有日照采光、间距等重大利害关系公民、法人以及其他组织,应在公告之日起十日内,持本人身份证件以及证明利害关系存在的证据材料(如本人房屋所有权证、土地证等),向龙港市行政审批局反映情况,登记为利害关系人,依法行使陈述、申辩以及听证等权利。逾期不申报的,视为放弃上述权利。
地址:龙港市政务客厅(二楼)投资项目审批服务室
联系电话:0577-68621092 68621022
龙港市行政审批局
2023年8月25日

责任编辑:costner1