和大家说说龙港“公积金+”增值服务的那些事!4月19日14:30在线答疑
温州发布
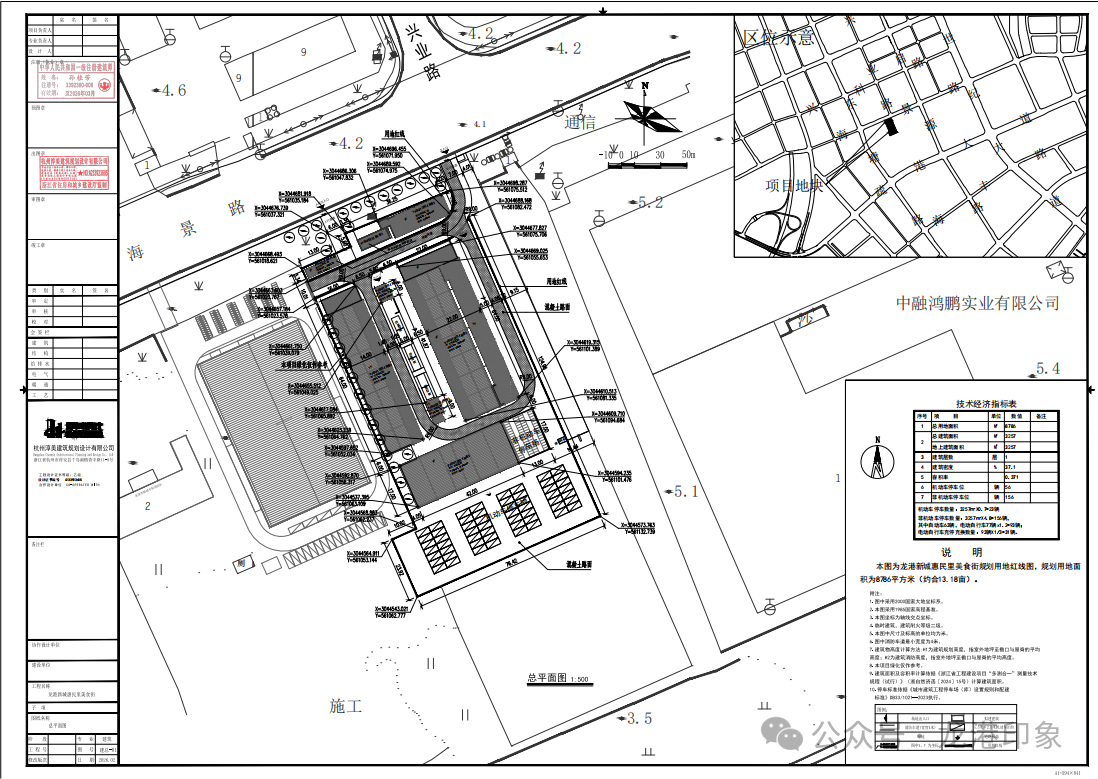
河南米房文化产业有限公司建设的龙港新城慧民里美食街建设项目(临时),土地坐落在龙港市新城海景路以南、东塘路以东,现进行建设工程规划许可批前公示,该项目作如下公示:(附总平面图如图所示)
(1)土地性质:交通运输用地;
(2)用地面积:8786㎡;
(3)建筑面积:3257㎡;
(4)建筑层数:为1层;
(5)其他经济技术指标见总平面图;
凡是与本建设项目有日照采光、间距等重大利害关系公民、法人以及其他组织,应在公告之日起十日内,持本人身份证件以及证明利害关系存在的证据材料(如本人房屋所有权证、土地证等),向龙港市行政审批局反映情况,登记为利害关系人,依法行使陈述、申辩以及听证等权利。逾期不申报的,视为放弃上述权利。
地址:龙港市政务客厅(二楼)项目服务区
联系电话:0577-68621092 68621022
龙港市行政审批局
2026年2月10日

责任编辑:costner1