龙港市专精特新孵化园1号办公楼招租意向登记公告

龙港市专精特新孵化园1号办公楼

招租意向登记公告

一、 项目区位

本项目位于龙港市龙港新城,产业集聚区海西路南侧、启源路东侧。龙港市海西路666号。


微信图片_2025-10-19_024837_974.png


微信图片_2025-10-19_024851_229.png

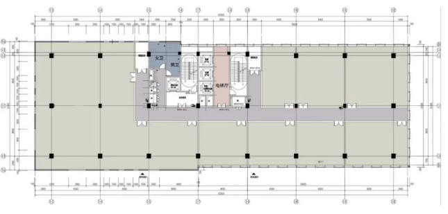
二、招租物业情况

计划出租龙港市专精特新孵化园1号办公楼2~12层,每层建筑面积约1400㎡,可使用办公面积约1200㎡。办公楼现状为毛坯,由出租方装修过道、电梯厅、卫生间后出租,可根据承租方需求分割办公空间,本公告为出租意向登记,正式出租时间以其他公告为准。

微信图片_2025-10-19_024908_516.png



微信图片_2025-10-19_024921_631.png

三、承租方条件

1、具有良好的商业信誉,良好的财务状况和支付能力的个人、企业或组织;

2、具有民事权利能力和民事行为能力;

3、承租方需按出租方的要求,进行合法经营;

4、不能将标的物用于存放法律法规禁止的危险物品;

5、符合国家法律法规规定的其他条件。


四、报名方式:

1、报名截止时间2025年10月28日下午5:00,有意向的承租方请在规定时间内拨打电话或者前往报名地点参加登记。

报名地点:龙港市月湖路1号,龙港市新城建设发展集团有限公司开发运营部

报名电话:方先生 15502185550

2、报名需登记租赁用途、租赁面积、租赁时间,租赁方为公司需提供营业执照(电子版),租赁方为个人需提供身份证(电子版)。


本活动最终解释权在法律允许范围内归本公司所有。


责任编辑:costner1

© 2003-2025 龙港网 版权所有